Enebolig
Feiring, Eidsvoll
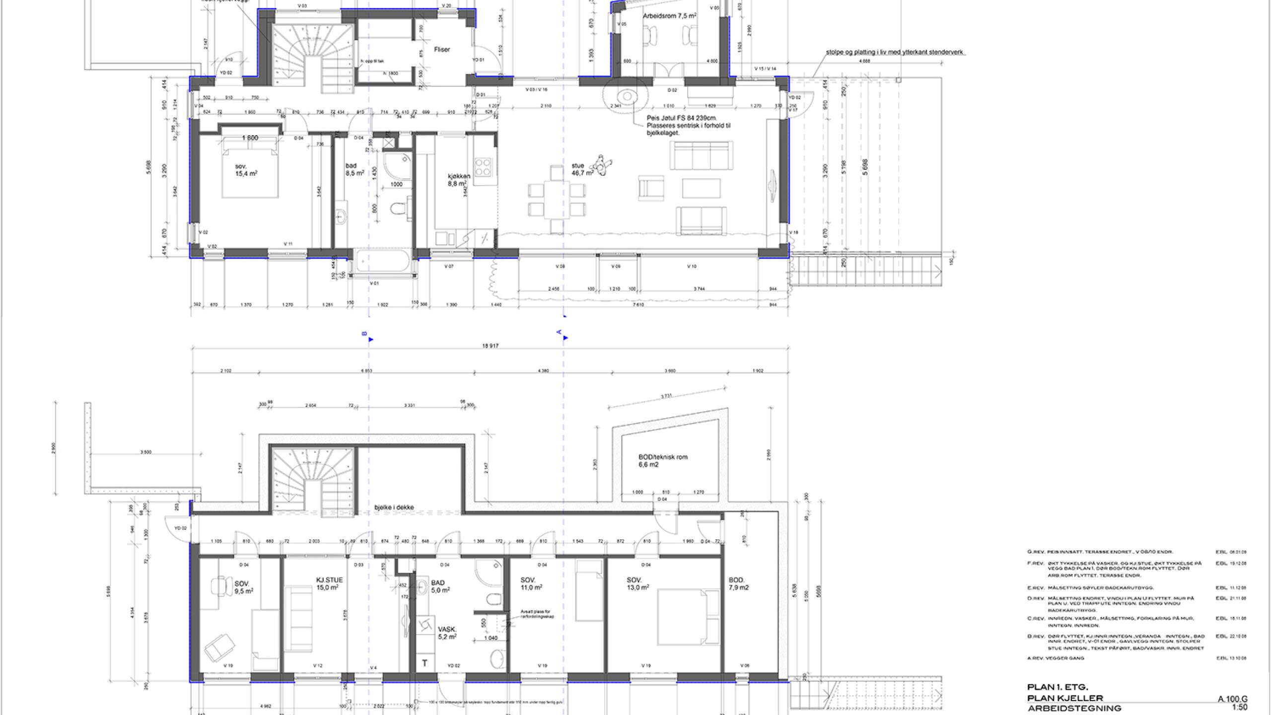
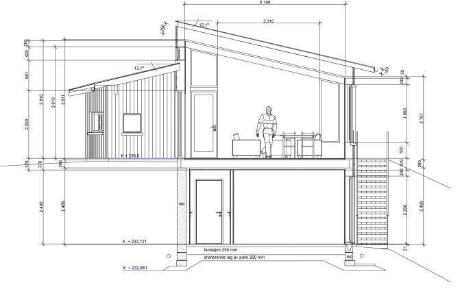
Enebolig i lia over riksvei 33 med flott utsikt over Feiring og Mjøsa. Eldre hus ble revet, og ny bolig plassert lenger ut mot skråningen for å danne et flatt platå på inngangsiden av huset. Alle nødvendige funksjoner, inkludert hjemmekontor, på inngangsplan. Barnerom, aktivitetsrom og gjesterom i underetasje med gode lys- og utsynsforhold. Uteplass overdekt med tak som løfter seg mot ettermiddags- og kveldssol.




