Nasjonalt Fløtningsmuseum
diverse

Prosjektet er inspirert av de mange konstruksjonene som det grønne gullet møtte på sin lange ferd nedover vannveiene.  Tømmerstokkene på sin ferd, de flotte lensekonstruksjonene og de arbeidsomme menneskene, skapte sammen med naturen en flott ramme og en bærekraftig industri.  Det var vannføringen i elvene som var selve motoren for denne industrien.  Vi ønsker at det nye anlegget skal reflektere noe av den samme bærekraften.  I tillegg er plasseringen av anlegget lagt til et stort og unikt våtmarksområde som inviterer til nysgjerrighet og utforsking av et mangfoldig dyreliv. 

Takformene til begge volumer er inspirert av atterhald lensene ved Bingen Lenser.  Lensekarene har en spennende hovedform som vi har designet inn i et «powerhouse» tak-system der flatene i sørlig retning kan kles med solceller.  Vi ser for oss at den mer vertikale flaten i nordlig retning kan gi store mengder dagslys ned i rommene under.  I tillegg kan de bli flotte lanterner både mot elven og mot Fetsund brua når det er mørkt.

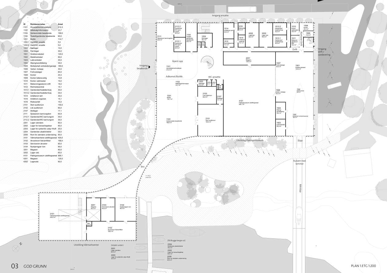
Fløtingsmuseet har vi plassert lengst nord langs elven, i retning lensene og eksisterende anlegg.  Lengst nord er varelevering og verksteder plassert.  I tillegg har vi laget en slipp med skinner fra elva helt inn i verkstedet.  Rommene med sin størrelse og fleksibilitet vil gjøre det mulig med mange typer utstillinger.  En god logistikk fra varelevering til lagring og rigging vil også favorisere en kompakt bygningsstruktur. Utstillingsdelen til våtmarks senteret er plassert sør på tomten, lengst ut mot Glomma.  Symbolsk er dette plassert på søyler nærmest ute i våtmarken og nær naturen.  Vi mener denne plasseringen kan forsvares i kraft av programmet og byggets sentrale rolle for forståelsen av våtmarken og dens viktighet.

God Grunn
God Grunn