Skysettoppen
boligbygg

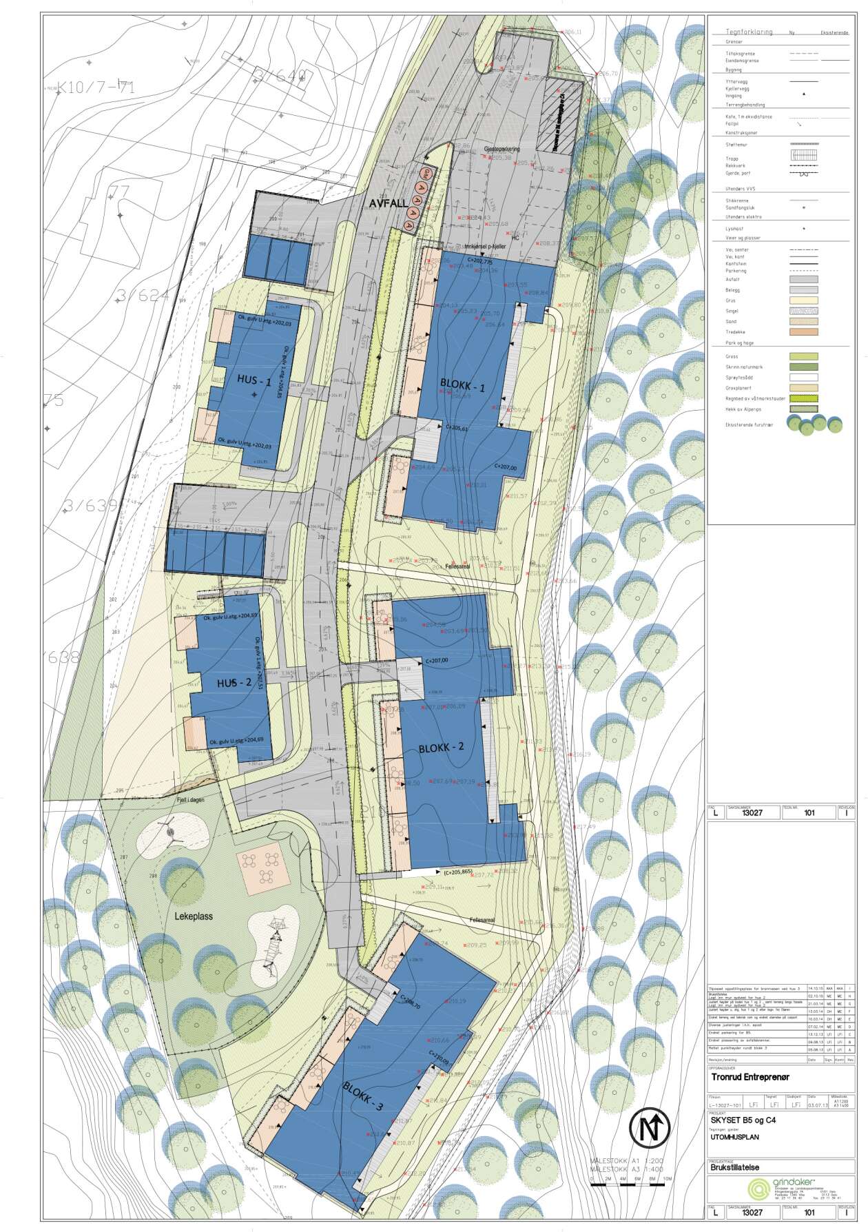
42 nye boliger på Hagan i Nittedal. Boligene ligger vestvendt med fin utsikt over dalen. På oversiden av adkomstvei ligger leilighetsbygg på tre etasjer med felles parkeringskjeller.

 

Leilighetene er fordelt i tre volumer, hvor inngangsparti med trapp og heis er markert med friske farger. Boder og teknisk rom for geovarme ligger i parkeringskjeller. Balkongene strekker seg over leilighetenes fulle bredde.

På nedsiden av adkomstveien ligger to firemannsboliger i to etasjer, som er del av prosjektet.

SkysethFotomontasje04
SkysethFotomontasje05
LM-13027-101-UTOMHUSPLAN A1-Rev-I