Vindveggens kontorlokaler
interiør

Ombygging og oppgradering av egne lokaler fra delvis landskaps- og delvis cellekontorer til åpent landskap med nye møterom, toaletter og spiseplass.
Egendesignede kontormøbler og kjøkkeninnredning på møterom.

Skjema kontorkjøkken
Kjøkken
Vindveggens egne kontorlokaler
Glassvegger
Himling
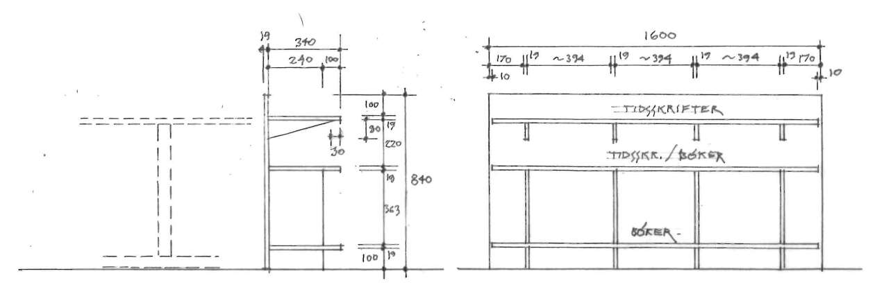
Bokyller
Bokhyller
Vindveggens egne kontorlokaler
Vindveggens egne kontorlokaler